5 Part Series on the Construction of a Carriage Home
Follow along with us on our upcoming carriage home project!
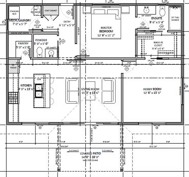
Part 1: Planning and Design
Introduction
Building a carriage house is an exciting journey that begins with careful planning and design. In this first part of our series, we'll explore the crucial steps involved in laying the foundation for a successful project.
Conceptualization and Needs Assessment
The journey starts with understanding the purpose of the carriage house. Is it for extra living space, a guest suite, or additional storage? Defining the intended use will guide the design and planning process.
Hiring the Right Team
Selecting the right team of architects, designers, and contractors is vital. Their expertise will help bring your vision to life while ensuring compliance with local building codes and regulations.
Design Development
During the design phase, preliminary sketches evolve into detailed blueprints. This phase includes choosing materials, defining the layout, and incorporating any specific features you desire. Collaboration with your design team is key to ensuring all your requirements are met.
Securing Permits and Approvals
Before construction begins, it’s essential to obtain the necessary permits and approvals from local authorities. This step ensures that your project complies with zoning laws and building codes, preventing potential legal issues down the line.
Setting a Budget and Timeline
Establishing a realistic budget and timeline is crucial for project management. This includes accounting for materials, labor, permits, and contingencies. A well-planned budget helps prevent financial overruns and ensures that the project progresses smoothly.
Conclusion
The planning and design phase sets the stage for a successful construction project. With a clear vision, a skilled team, and all necessary approvals in place, you're ready to move on to the next phase: breaking ground.

